| 価格 | 1,300万円 ![]() |
||||
|---|---|---|---|---|---|
| 所在地 | 青森県弘前市新寺町
この地域周辺の物件を見る |
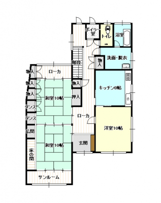
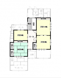
土地面積 | 479.33m² (144.99坪) | 建物面積 | 200.89u (60.76坪) |
| 築年月 | 1981年8月築 | 間取り | 6DK (DK8/洋室10/和室10/和室10/洋室10/洋室8/洋室6/和室8) | ||
| 交通 |
弘南鉄道大鰐線 弘高下/徒歩14分
|
||||
電話をかける(携帯・PHS可)
0172-27-3355
「ホームページを見た」とお伝え下さい。
物件住所・物件価格を
お伝えください
電話をかける(携帯・PHS可)
0172-27-3355
「ホームページを見た」とお伝え下さい。
物件住所・物件価格を
お伝えください
| 特徴 |
|
|---|---|
| セールスコメント | ■みどり幼稚園まで約200m徒歩3分 ■桔梗野小学校まで約500m徒歩7分 ■第四中学校まで約700m徒歩9分 ■弘南バス「新寺町角」バス停まで約100m徒歩2分 ■ローソン弘前樹木店まで約240m徒歩3分 ■薬王堂弘前桔梗野店まで約550m徒歩7分 ■ユニバース樹木店まで約1100m ■沢田内科医院まで約750m徒歩10分 <※備考:公拡法の届出有り> |
| 採光面 | - | 構造/階数 | 木造/地上2階建 |
|---|---|---|---|
| 建ぺい率 | 60(%) | 容積率 | 200(%) |
| 駐車場 | - | 現況/引渡し | 空家/即時 |
| 土地権利 | 所有権 | 私道負担面積 | - |
| 接道状況 | 接道: 東 13m 公道 道路幅: 9m | 用途地域 | 第一種住居地域
|
| セットバック | なし | 法令上の制限 | 景観法・法22条区域 |
| 地目 | 宅地 | 地勢 | |
| 建築確認番号 | 都市計画 | 市街化区域 | |
| 小学校区 | 弘前市立桔梗野小学校 (青森県弘前市) この学区の他の物件を見る |
中学校区 | 第四中学校 (青森県弘前市) この学区の他の物件を見る |
| 取引態様 | 一般媒介 | ||
| PDF資料 | |||
| 情報更新日 | 2025年11月15日 | 次回更新日 | 2025年11月29日 |
電話をかける(携帯・PHS可)
0172-27-3355
「ホームページを見た」とお伝え下さい。
物件住所・物件価格を
お伝えください
| 年利率 | % |
||
|---|---|---|---|
| ボーナス払い | 返済年数 | ||
| 頭金 | 直接入力する | 万円 | |

毎月のご返済額 |
ボーナス(×年2回) |
物件価格1,300万円 |
電話でお問い合わせ
おうち情報館 城東店
|
電話をかける 0172-27-3355 ※「ホームページを見た」とお伝えください。 |
物件住所・物件価格を お伝えください |
|---|
■2階から岩木山が良く見える
■小中学校が徒歩10分圏内
■コンビニまで徒歩3分
■駐車1台可